MEHRNOOSH
ARCHITECTURE & URBAN DESIGN
Introduction
Portfolio
Commercial
Homes
Multi-Family
Exhibit
Public Spaces & Urban Design
List of Projects
Project Locations
Acknowledgment
Article
Contact
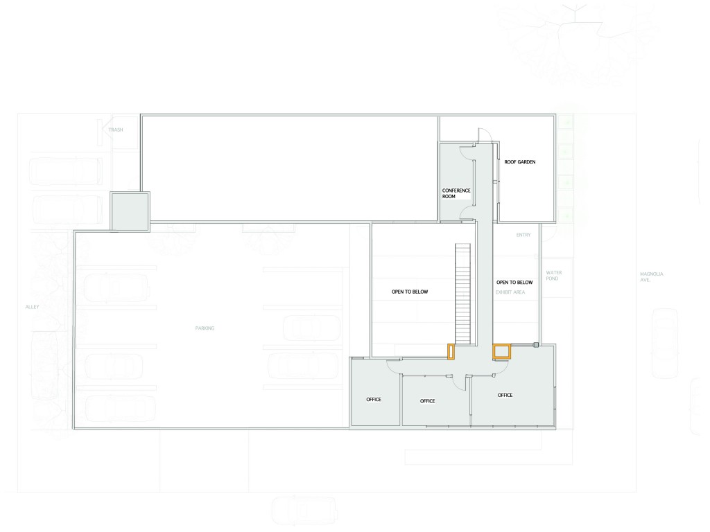
Burman Studios
Year: 2005
Project Location: Burbank, CA